点点平台-点点体育官网
欢迎进入北海市点点平台建设资开发有限公司网站!
今天是:
联系我们
|
站内搜索
网站首页
走进点点平台
点点平台简介
领导成员
组织架构
荣誉成绩
子公司介绍
新闻中心
公司要闻
部门及子公司动态
社会责任
点点体育官网
党建要闻
廉政工作
专题活动
公司文化
文化活动
员工风采
创城宣传
信息公开
通知公告
公示公告
人才招聘
举报指南
招采信息
公告
智慧平台
后台
大屏
点点平台-点点体育官网
主页
走进点点平台
新闻中心
项目建设
党群之窗
公司文化
信息公开
招采信息
公告
公告
北海北部湾国际会议中心地块护栏安装工程询价公告
发布时间:2023-04-27 11:09:26
北海北部湾国际会议中心地块护栏安装工程询价公告
各相关供应商:
我公司现以询价方式选择北海北部湾国际会议中心地块护栏安装工程施工单位。现将有关内容公告如下:
一、项目简介:
(一)项目名称:北海北部湾国际会议中心地块护栏安装工程。
(二)工程地点:北海市高德港大桥北侧。
(三)工程内容:北海北部湾国际会议中心地块护栏安装。
(四)工期:5天。
(五)最高限价:96872.44元
二、供应商资格要求:
(一)具备符合法律法规及国家有关政策规定设立的企业法人营业执照(三证合一)、公路交通工程(公路安全设施分项)专业承包贰级及以上资质、安全生产许可证证明文件。
(二)本次询价不接受联合体报价。
三、书面报价文件要求
(一)书面报价文件经单位盖章和单位负责人或授权代表签字后装进信封进行密封,封套均应加贴封条并在封口处加盖单位公章;
(二)报价文件至少包含报价单位服务方案、报价及报价计算依据、计算式及优惠折扣等。
(三)报价采用工程量清单报价。
四、评分办法
(一)本次询价采用综合评估法:综合评估法的分值为100分,其中报价占60分,技术方案占40分。
(二)评定小组:评定小组由我公司在公司内部的“评定小组成员库”中随机抽取的3人及经办部门的2人共5人组成。
(三)评分方法:
1.报价评分:
报价分为无效报价、有效报价,评分计算公式如下:
某有效报价=有效报价中最低报价/某有效报价×60
2.服务方案评分:服务方案包含拟投入的机械人员数量、计划完成工作任务时间等方面的内容,评分分为三档:一档(0-10分)、二挡(10-25分)、三档(25-40分)。
(四)总分:总评分按我公司组建的评定小组各成员给各报价供应商打的平均分按从高至低顺序排名,排名第一的为评定中标候选人。两个及以上单位为同一得分的,由评定小组决定排名。
(五)评分监督:监督人1人,由点点平台公司党总支委派。
五、报价文件存在以下情形的,其报价文件无效:
(一)报价超出最高限价的;
(二)报价文件未经投标单位盖章和单位负责人或授权代表签字的;
(三)报价文件和各类证书复印件模糊不清无法辨认的;
(四)报价文件对询价公告有关服务实质性内容未响应的;
(五)报价文件存在明显错误的;
(六)采用联合体报价的;
(七)评定小组根据《中华人民共和国招标投标法》《中华人民共和国招标投标法实施条例》等规定,认定报价文件存在串标、弄虚作假等行为的;
(八)评定小组认定存在围标、恶性竞争等其他违规行为的。
六、报价文件提交时间地点
2023年5月5日前(公告发布次日起3个工作日)提交报价材料(五份纸质材料+一份可编辑版、盖章扫描版材料U盘)到广西壮族自治区北海市北海大道国际金融大厦C座一楼工程二部。
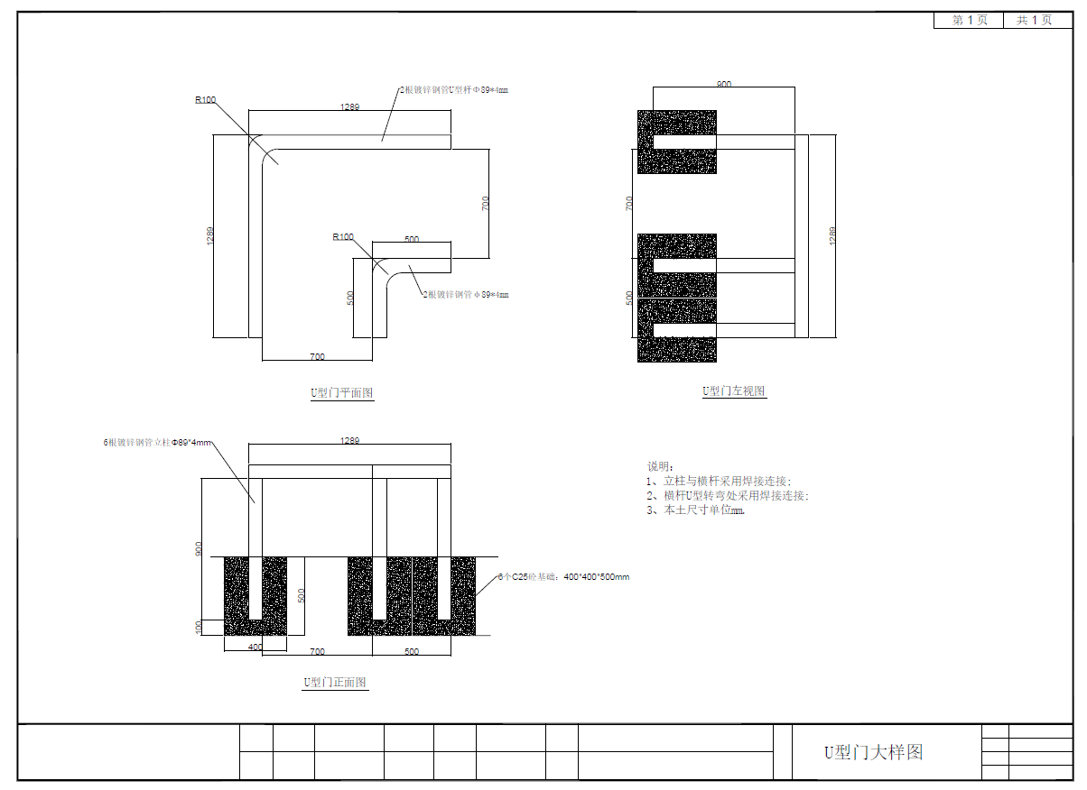
附件:1、招标控制价及工程量清单
2、施工设计图
北海廉鑫建设投资有限公司
2023年4月27日
(联系人:冯工,联系电话:0779-3033401)
附件1:
附件2:
公告
公告
公告
您现在所在的位置:
首页
>
招采信息
>
公告
>
北海北部湾国际会议中心地块护栏安装工程询价公告
2023-04-27 11:09:26
北海北部湾国际会议中心地块护栏安装工程询价公告
各相关供应商:
我公司现以询价方式选择北海北部湾国际会议中心地块护栏安装工程施工单位。现将有关内容公告如下:
一、项目简介:
(一)项目名称:北海北部湾国际会议中心地块护栏安装工程。
(二)工程地点:北海市高德港大桥北侧。
(三)工程内容:北海北部湾国际会议中心地块护栏安装。
(四)工期:5天。
(五)最高限价:96872.44元
二、供应商资格要求:
(一)具备符合法律法规及国家有关政策规定设立的企业法人营业执照(三证合一)、公路交通工程(公路安全设施分项)专业承包贰级及以上资质、安全生产许可证证明文件。
(二)本次询价不接受联合体报价。
三、书面报价文件要求
(一)书面报价文件经单位盖章和单位负责人或授权代表签字后装进信封进行密封,封套均应加贴封条并在封口处加盖单位公章;
(二)报价文件至少包含报价单位服务方案、报价及报价计算依据、计算式及优惠折扣等。
(三)报价采用工程量清单报价。
四、评分办法
(一)本次询价采用综合评估法:综合评估法的分值为100分,其中报价占60分,技术方案占40分。
(二)评定小组:评定小组由我公司在公司内部的“评定小组成员库”中随机抽取的3人及经办部门的2人共5人组成。
(三)评分方法:
1.报价评分:
报价分为无效报价、有效报价,评分计算公式如下:
某有效报价=有效报价中最低报价/某有效报价×60
2.服务方案评分:服务方案包含拟投入的机械人员数量、计划完成工作任务时间等方面的内容,评分分为三档:一档(0-10分)、二挡(10-25分)、三档(25-40分)。
(四)总分:总评分按我公司组建的评定小组各成员给各报价供应商打的平均分按从高至低顺序排名,排名第一的为评定中标候选人。两个及以上单位为同一得分的,由评定小组决定排名。
(五)评分监督:监督人1人,由点点平台公司党总支委派。
五、报价文件存在以下情形的,其报价文件无效:
(一)报价超出最高限价的;
(二)报价文件未经投标单位盖章和单位负责人或授权代表签字的;
(三)报价文件和各类证书复印件模糊不清无法辨认的;
(四)报价文件对询价公告有关服务实质性内容未响应的;
(五)报价文件存在明显错误的;
(六)采用联合体报价的;
(七)评定小组根据《中华人民共和国招标投标法》《中华人民共和国招标投标法实施条例》等规定,认定报价文件存在串标、弄虚作假等行为的;
(八)评定小组认定存在围标、恶性竞争等其他违规行为的。
六、报价文件提交时间地点
2023年5月5日前(公告发布次日起3个工作日)提交报价材料(五份纸质材料+一份可编辑版、盖章扫描版材料U盘)到广西壮族自治区北海市北海大道国际金融大厦C座一楼工程二部。
附件:1、招标控制价及工程量清单
2、施工设计图
北海廉鑫建设投资有限公司
2023年4月27日
(联系人:冯工,联系电话:0779-3033401)
附件1:
附件2:
上一篇:
关于北海市铁山港工业区A5深海排放管工程--海域部分检测招标代理服务的询价公告
下一篇:
北海北部湾国际会议中心地块海堤挡墙修复工程询价公告
走进点点平台
点点平台简介
领导成员
组织架构
荣誉成绩
子公司介绍
新闻中心
公司要闻
部门及子公司动态
社会责任
点点体育官网
党建要闻
廉政工作
专题活动
公司文化
文化活动
员工风采
创城宣传
信息公开
通知公告
公示公告
人才招聘
举报指南
招采信息
公告
扫一扫关注我们
点点平台微站
扫一扫关注我们
点点平台微信
北海市海城区国际金融大厦c座4楼
Copyright (c) 2007-2025 点点平台-点点体育官网版权所有
桂ICP备19007195号-1
桂公网安备45050202000685号
技术支持:北海正群科贸有限责任公司